Om boendet
- Status: Ledig
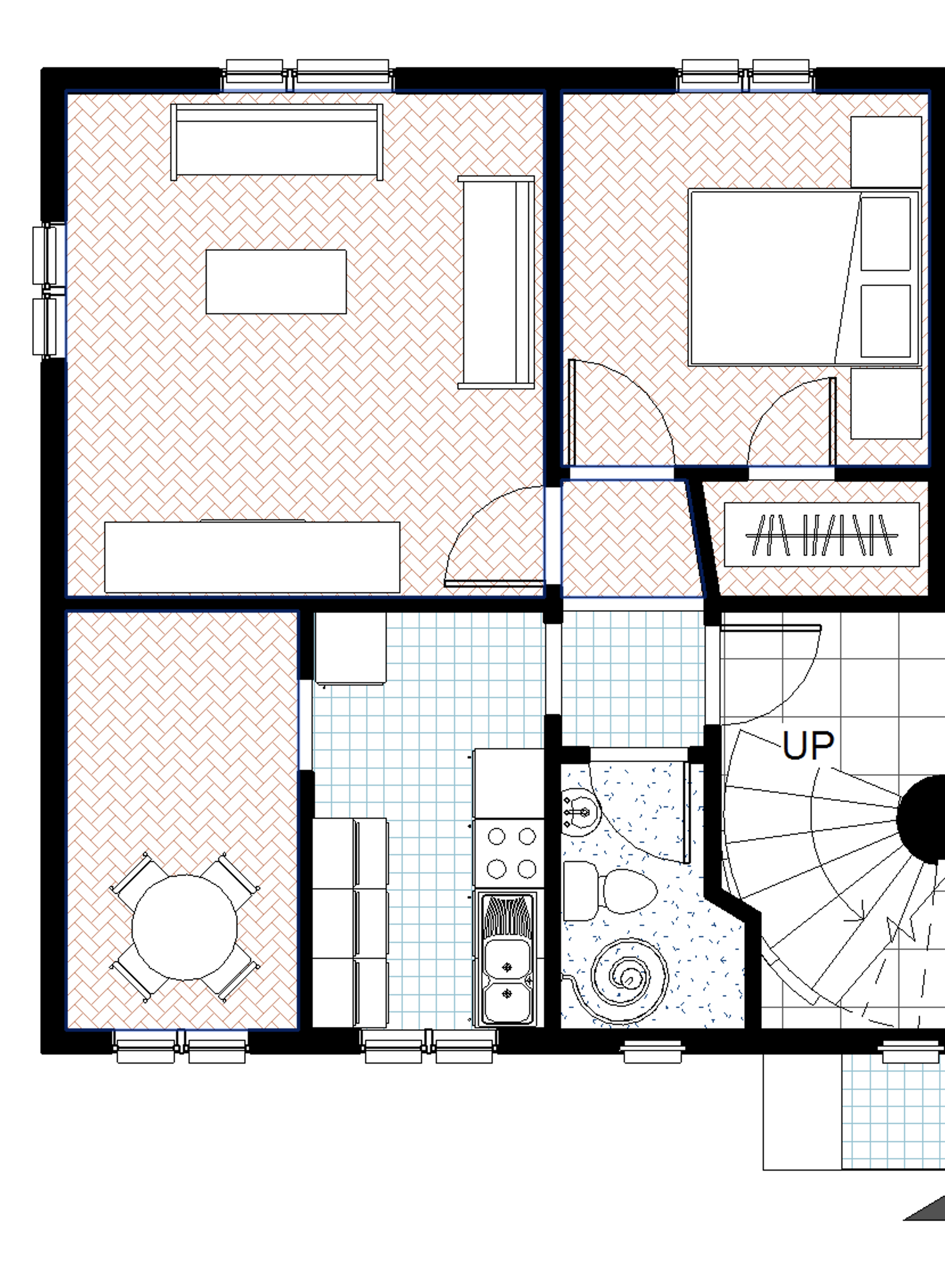
- Sovrum: 2
- Badrum: 1
- Totalt antal rum: 3
- Våning: 2
- Storlek: 55 m²
Beskrivning
-
Beskrivning:
Välkommen till Skiffervägen 13 – ljus och yteffektiv 2,5 rum och kök på 55 kvm! Denna trevliga och välplanerade lägenhet ligger i ett naturnära och lugnt område, perfekt för dig som vill kombinera ett prisvärt boende med närhet till skog, friluftsliv och aktiviteter. Här bor du med kort avstånd till Kumla och smidiga pendlingsmöjligheter till Örebro. Kvarteret omges av natur – en idealisk plats för dig som uppskattar lugn och ro samtidigt som du vill ha allt du behöver inom bekvämt avstånd. Lägenheten När du kliver in möts du av en rymlig hall med tåligt golv och gott om plats för avhängning. Från hallen når du alla bostadens rum, vilket gör planlösningen både praktisk och lättmöblerad. Vardagsrum Det stora vardagsrummet har flera fönster som ger fint ljusinsläpp. Rummet rymmer både soffgrupp, matbord och ytterligare möblering. Det ljusa golvet och de neutrala väggarna ger en öppen och välkomnande känsla. Kök Köket är ljust och funktionellt med bra förvaring och arbetsyta. Här finns kyl/frys och spis/ugn, samt ett stort fönster med utsikt mot naturen. Den avlånga kökslösningen gör det enkelt att arbeta och organisera köksutrustningen. Sovrum 1 – Det större sovrummet Ett rymligt sovrum med flera garderober och gott om plats för dubbelsäng. Fönstret ger ett harmoniskt ljusinsläpp och en utsikt mot grönskan. Sovrum 2 – Det mindre sovrummet Perfekt som barnrum, hemmakontor eller gästrum. Rummet har fint ljus och är lätt att möblera. Badrum Praktiskt badrum med toalett, dusch och handfat. Ett fönster ger naturligt ljus och ventilation. Läget Skiffervägen ligger i ett rofyllt och naturnära område med skog precis utanför. Här har du nära till: Kumla Golfklubb – ca 2 minuter bort. Vandringsleder och naturstråk i direkt anslutning. Kvarntorpshögen – löpning, mountainbike och skidåkning vintertid. Kumla centrum – ca 10 minuter. Örebro – ca 20 minuter. Här kombineras lugnet från naturen med enkel tillgång till aktiviteter, motion och service. Hyra: 6050 kr/mån (varmhyra) Ingår: värme Du betalar själv: hushållsel Med sina 55 kvm, tre rum och naturnära omgivning erbjuder denna lägenhet ett prisvärt och välplanerat boende med stora möjligheter – perfekt för både en person, par eller en liten familj.
Visa hela beskrivningen
Plats
Detaljer om byggnaden
- Parkering: ingår
Bekvämligheter och funktioner
- Bekvämligheter:
- Ingår i hyran: